Introduction
While the rest of the ancient Greek world and much of the Eastern Mediterranean had fallen under the shadow of the Greek Dark Age, the island of Euboea remarkably survived. It would be reasonable to assume that the island communities on Euboea experienced the same destruction as other Mycenaean societies, however the city of Lefkandi proved to be resilient against collapse. In fact, Lefkandi thrived in the century and a half to follow as archaeological sites have rediscovered an increased occupancy during a time when civilization in Greece was supposed to be slumbering[1] with theories of their survival tightly linked to their location as a trading center along the Phoenician trade routes and the leadership of The Big Man.
Lefkandi During the Greek Dark Ages
Lefkandi’s population boom is evidenced by three layers of buildings and floors made of locally sourced clay, one stacked on top of one another.[2] Each layer is home to unique identifiers of architectural and material style. The lowest layer housed mostly basement storerooms equipped with accoutrement reflecting a pantry filled with jugs for wine and water and bins for olives and grain.[3] The floorplan of this building was irregular, and the locally created pottery that was of simple design congruent with Mycenaean culture.[4] Destroyed by fire, the clay walls collapsed over top of the storerooms preserving their contents[5], buried under the next layer of occupancy.
The floor plan of this second layer was more regular with rectangular rooms.[6] This society showed an increased imagination in the decoration of their pottery, as the pictorial style was introduced.[7] The building was maintained over the next 100 years by laying fresh clay over worn and soiled spots in the floor, however, during a turning point occurs for the community when the inhabitants took to digging up the clay floors and burying their dead within the buildings.[8] These pits were located next to the building’s walls and dug deeply into the floor before the deceased was placed inside, sans material goods, and then covered in various sherds of pottery.[9] The floor was then rebuilt and smoothed over. This burial technique was a deviation from regular burial practices at the time implying some form of crisis within the society to prompt such a large cultural shift. The third layer showed a poorer community with inferior pottery and limited building remains signifying a final death throw for the ancient Lefkandi civilization.[10]
It is known that from the eleventh to ninth centuries, Lefkandi was a thriving city based on the wealth found within its cemeteries and its continuously expanding city limits. Outside trade with the Phoenicians was also thriving during this time as evidenced by imported goods such as clay chests from Attica, flasks from Palestine, Egyptian bronze bowls as well as ivory and amber goods from India and Arabia.[11] It was during this time that perhaps one of Lefkandi’s most famous buildings was constructed, possibly in honor of a local hero or leader, the Lefkandi ‘Heroon.’
The Lefkandi Heroon
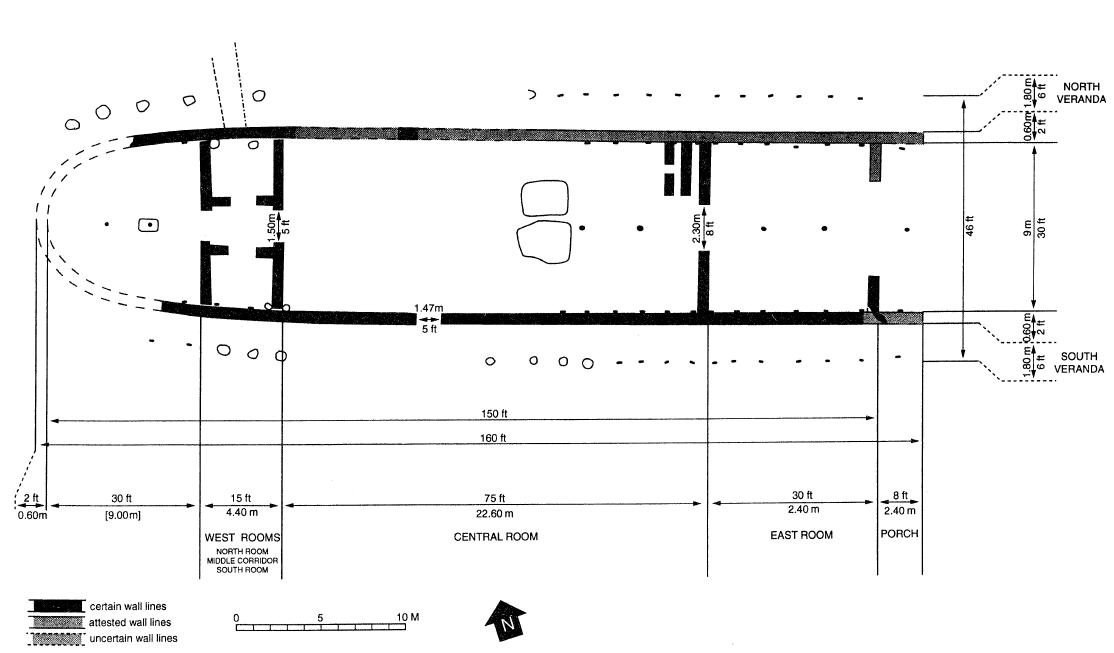
Simple in design, the heroon is an elongated building that is apsidal at the front and has a blunt, covered porch at the back. Inside, the floorplan between the porch on the east side and the apse on the west are an east room, central room, and two west rooms.[12] Based on Figure 1, the exterior of the building is roughly 160 feet long, 30 feet wide wall to wall or 46 feet wide beneath the verandas.[13] The east room is approximately 900 square feet, the central room is 2,250 square feet, and the west rooms nearly 188 square feet each with a 5 feet wide hallway between them. In total, the building was over 4,000 square feet: an enormous endeavor.

Such a large building would require a master builder or architect to organize and construct, a labor force, materials manufacturing, and, above all, a good reason or important person to inspire so much effort into its construction. It would seem the person archaeologists refer to as The Big Man of Lefkandi was the inspiring hero needed to orchestrate such a structure. A hero politically and militarily inclined who reveled in, networked with, and exposed his wealth to his community by hosting large feasts. These banquets are implicated by the drinking equipment, large storage space in the apse, and large central room of the building.[14]
This same central room houses two burial pits in which resides the apparent cremated remains of a male warrior, his female consort bedecked in gold jewelry, and four horses.[15] Buried with The Big Man was an iron sword and spearhead, a bronze bowl, antique amphora, iron knife adorned with ivory, an Old Babylonian gold pendant, and faience necklace worn by his female companion.[16]

All items were imported from Cyprus or the Eastern Mediterranean.[17] The contents of the rooms of the heroon implicate a domicile functionality, however, the grave pit within the building and the several without would indicate a shrine. The question of whether the building was created for the sake of serving as a temple or domicile is still undecided, however, it is worth considering a domestic use of the building first and then a later transition into a possible shrine after the death of The Big Man and, eventually, the intentional destruction of the building altogether. Who The Big Man was remains a mystery, but it is possible to posit the hypothesis that his importance within Lefkandi was based on his connections with the Phoenician trade system including his military and political expertise.
Phoenician Trade
Phoenician trade routes were extensive throughout the Mediterranean, eventually outlining the entire Mediterranean coastline. “Phoenicians became accomplished sailors, creating an unprecedented trade network which went from Cyprus, Rhodes, the Aegean islands, Egypt, Sicily, Malta, Sardinia, central Italy, France, North Africa, Ibiza, Spain, and beyond even the Pillars of Hercules and the bounds of the Mediterranean.”[18] Their sea-faring prowess was well known throughout the Mediterranean as even the North Star which they used for navigation at night was referred to by the Greeks as the Phoenician Star.[19]
They were exporters, importers, and transporters of goods unrelated to their central trade endeavors. If coin was to be made or luxury gifts to be acquired out of favor, merchants were willing to take trade goods from one port to another along their trade routes which circumvented the Mediterranean Sea coastline.[20] “The foreign trade of very ancient Greece was carried entirely in Phoenician ships.”[21]
Their main export was cedar and fir wood traded most frequently Mesopotamia by land and Egypt by sea.[22] Phoenicians were also known for their spectacularly dyed textiles. They would import wool and cotton, dye the fabrics, then turn around and export them again.[23] They were most famous for their purple textiles worn most often by the elite or royalty.[24] Many of these fabrics would also be embroidered with “motifs such as scarabs, rosettes, winged globes, lotus blossoms, and mythical monsters.”[25] While the Phoenicians were able to mass manufacture amphoras for the sea-trade of fine wine, the wine was produced by a foreign entity.[26] The gathering of foreign materials, altering them, and reselling for a profit was a solid business plan for the Phoenicians. They also imported raw materials such as copper, silver, iron, gold, amber, ivory, and ebony from their various trade posts in Cyprus, Spain, Ethiopia, India, and along the Baltic coast.[27] They used these metals to make their jewelry and accessories including daggers and casks.
Phoenician Ships
Due to their wide-reaching trade routes, it was inevitable that their large sea faring ships would soon find influence in other cultures such as the Egyptians who, by 1000 BC had “adopted the Phoenician use of locked mortise and tenon,”[28] for building their joints on their ships. Their influence was so impressive to the Egyptians that images of their ships can be found carved into Egyptian sarcophagi.

Their ships were the first to include caulking between the plants, having a battering ram on the bow, and being built with a keel.[29] Trade ships had “wide, big-bellied hulls…. Higher sides too in order to permit the stacking of cargo on deck as well as below, and they had both a convex stern and bow.”[30] The Phoenician trade ship was equipped with a central storage hold for multiple tons of amphoras of wine;[31] a galley in the stern which held cooking implements such as pots, bowls, and even a mortarium[32] ideal for cooking the meals for the ship’s crew; and sleeping quarters for the crew. It would make sense to place the sleeping quarters near the bow of the ship where space would allow, similarly to how modern vessels are constructed.
Connecting Phoenician Trade to Lefkandi
By the latter half of the 10th century, Lefkandi and the Euboean Gulf had a become “prominent trading center in the Aegean”[33] with Phoenician imports dominating the markets. The tombs within the Skoubris plot of Lefkandi were rediscovered to belong to that of women and young adults or children. Few of these graves included little materials goods, but some displayed more wealth than others. Particularly, some tombs housed “fragments of ivory, a necklace in blue faience, a bronze fibula from Crete as well as one from Cyprus, an iron dagger of possibly Cypriot origin, and… a Syro-Palestinian dipper juglet.”[34] It would stand to reason, then, that trade between Lefkandi and distant lands would be necessary in order for these items to be present within the tombs. Furthermore, the trade routes of the Phoenicians are known to connect with Crete and Cyprus, where items from Syria or Palestine could be traded and passed forward to Lefkandi along with the goods from Cyprus or Crete.
It is possible that the coastal cities along the “Euboean Gulf possessed… defensive means, such as ships, as indicated by the iconographic evidence”[35] found on their pictorial pottery as seen in Figure 3, “suggesting that in [the Euboean Gulf] a continuous tradition existed in type of warship and ship construction.”[36] These warships would likely have been used to defend the coastlines of their communities as well as traveled to other lands for political or military reasons, likely picking up various goods and imports along the way.

Evidence of the communities of Euboean being seafaring further the connection between the Phoenician trade routes and Lefkandi. If war ships exist, it is only logical, then, that merchant and trade ships would exist as well. These ships, even in Figure 4, would have been influenced by the design of the Phoenician trade ships as the Phoenician merchants were the most formidable sea faring civilization during this time. “Their ships were for centuries the accepted models of naval design.”[37] Even during the Greek Dark Ages the island of Euboean was thriving with continued outside connection with the foreign world as evidenced by the remains of imports in burial sites throughout Lefkandi which include items from Cyclades, Cyprus, the Levant, and Egypt during the Late Hellenic period leading into the time that the Heroon of Lefkandi was built and occupied.
How The Big Man gained his importance within Lefkandi is uncertain, but the material goods, companion, and horses buried with him and the scale of the building he was buried under would indicate that he was of great wealth, politically placed within the society, and a leader with a warrior background.[38] His extravagant cremation acts as another signal of The Big Man’s position within Lefkandi as well as the fact that the heroon was demolished after his death to no longer be used now that the chief occupant was deceased.[39]
Although the apsidal structure of the building is slightly reminiscent of Bronze Age Greece, it cannot be directly linked as a descendant of that early Greek architecture.[40] Rather it is entirely unique in its design and use therefore some other explanation must be considered. It is important to link The Big Man to a seafaring life as it is possible that the master builder or architect of the Heroon intentionally built the structure after the ships The Big Man was associated with. By looking at the layout of the building the apse can be viewed as the bow, the west rooms near the “bow” as the “crew’s” sleeping quarters, the central room as the cargo hold, the east room as the galley and the porch as the stern. It is also noteworthy that the building was essentially built on an East to West course[41] which stands in parallel to the Phoenician trade routes, their home port standing in the East and their routes taking them West.
Conclusion:
Considering the magnitude of the size of the Heroon at Lefkandi and the rarity of its design in Greek architecture, it could be assumed that the Heroon was built to imaginative specifications to suit an individual’s identity. Furthermore, the floor plan of the building and its potential domestic functions parallels that of the use of space in the hulls of Phoenician trade ships to such a degree that these parallels could be considered intentional. Therefore, it could be concluded that The Big Man’s house was deliberately designed in the shape of a Phoenician trade ship as a representation of his wealth and political leadership due to his connections with Phoenician trade. Without his strong relationships with the merchant sailors of the Levant, Lefkandi would have likely fallen into darkness like the rest of the Greek and much of the Mediterranean world rather than enjoying the prosperity and security provided by productive foreign trade.
References Cited
- Ballard, Robert D., Lawrence E. Stager, Daniel Master, Dana Yoerger, David Mindell, Louis L. Whitcomb, Hanumant Singh, and Dennis Piechota. “Iron Age Shipwrecks in Deep Water off Ashkelon, Israel.” American Journal of Archaeology 106, no. 2 (2002): 151-68. Accessed February 4, 2020. doi:10.2307/4126241.
- Bowen, Ezra. “Ships.” The Scientific Monthly 27, no. 1 (1928): 57-64. Accessed April 21, 2020. www.jstor.org/stable/7965.
- Cartwright, Mark. “The Phoenicians – Master Mariners.” Ancient History Encyclopedia. Last modified April 28, 2016. https://www.ancient.eu/article/897/.
- Cartwright, Mark. “Trade in the Phoenician World.” Ancient History Encyclopedia. Last modified April 01, 2016. https://www.ancient.eu/article/881/.
- Crielaard, Jan Paul. “BASILEIS AT SEA: Elites and External Contacts in the Euboean Gulf Region From the End of the Bronze Age to the Beginning of the Iron Age.” In Ancient Greece: From the Mycenaean Palaces to the Age of Homer, edited by Deger-Jalkotzy Sigrid and Lemos Irene S., 271-98. Edinburgh: Edinburgh University Press, 2006. Accessed April 21, 2020. www.jstor.org/stable/10.3366/j.ctt1g09xng.19.
- De Waele, J.A.K.E. “The Layout of the Lefkandi ‘Heroon’.” The Annual of the British School at Athens 93 (1998): 379-84. Accessed April 20, 2020. www.jstor.org/stable/30103795.
- MacGrail Seán. Early Ships and Seafaring: Water Transport Beyond Europe. Barnsley: Pen and Sword, 2015.
- Negbi, Ora. “Early Phoenician Presence in the Mediterranean Islands: A Reappraisal.” American Journal of Archaeology 96, no. 4 (1992): 599-615. Accessed April 25, 2020. doi:10.2307/505187.
- Pakkanen, Jari, and Petra Pakkanen. “The Toumba Building at Lefkandi: Some Methodological Reflections on Its Plan and Function.” The Annual of the British School at Athens 95 (2000): 239-52. Accessed April 25, 2020. www.jstor.org/stable/30103434.
- Sackett, L.H. and M.R. Popham. “LEFKANDI: A Euboean Town of the Bronze Age and the Early Iron Age (2100-700 B.C.).” Archaeology 25, no. 1 (1972): 8-19. Accessed April 20, 2020. www.jstor.org/stable/41674381.
Figures Cited
- Figure 1 – De Waele, J.A.K.E. “The Layout of the Lefkandi ‘Heroon’.” The Annual of the British School at Athens 93 (1998): 379-84. Accessed April 20, 2020. www.jstor.org/stable/30103795.
- Figure 2 – Domínguez, Adolfo. Jinetes en Grecia y sus ecos en la cultura ibérica. Gladius. XXV. 2005. Accessed May 10, 2020. 207-236. 10.3989/gladius.2005.29.
- Figure 3 – “The Ages of Exploration.” Ages of Exploration. Accessed May 10, 2020. https://exploration.marinersmuseum.org/watercraft/phoenician-ships/.
- Figure 4 – Crielaard, Jan Paul. “BASILEIS AT SEA: Elites and External Contacts in the Euboean Gulf Region From the End of the Bronze Age to the Beginning of the Iron Age.” In Ancient Greece: From the Mycenaean Palaces to the Age of Homer, edited by Deger-Jalkotzy Sigrid and Lemos Irene S., 271-98. Edinburgh: Edinburgh University Press, 2006. Accessed April 21, 2020. www.jstor.org/stable/10.3366/j.ctt1g09xng.19.
Foot Notes
[1] L.H. Sackett and M.R. Popham. “LEFKANDI: A Euboean Town of the Bronze Age and the Early Iron Age (2100-700 B.C.).” Archaeology 25, no. 1 (1972): 8-19. Accessed April 20, 2020. www.jstor.org/stable/41674381. 13.
[2] Ibid 14.
[3] Ibid 14.
[4] Ibid 14.
[5] Ibid 14.
[6] Ibid 14.
[7] Ibid 14.
[8] Ibid 14.
[9] Ibid 14.
[10] Ibid 14.
[11] Ibid 18.
[12] J.A.K.E. De Waele. “The Layout of the Lefkandi ‘Heroon’.” The Annual of the British School at Athens 93 (1998): 379-84. Accessed April 20, 2020. www.jstor.org/stable/30103795. 381.
[13] Ibid 381.
[14] Jan Paul Crielaard. “BASILEIS AT SEA: Elites and External Contacts in the Euboean Gulf Region From the End of the Bronze Age to the Beginning of the Iron Age.” In Ancient Greece: From the Mycenaean Palaces to the Age of Homer, edited by Deger-Jalkotzy Sigrid and Lemos Irene S., 271-98. Edinburgh: Edinburgh University Press, 2006. Accessed April 21, 2020. www.jstor.org/stable/10.3366/j.ctt1g09xng.19. 287.
[15] J.A.K.E. De Waele. “The Layout of the Lefkandi ‘Heroon’.” The Annual of the British School at Athens 93 (1998): 379-84. Accessed April 20, 2020. www.jstor.org/stable/30103795. 379.
[16] Jan Paul Crielaard. “BASILEIS AT SEA: Elites and External Contacts in the Euboean Gulf Region From the End of the Bronze Age to the Beginning of the Iron Age.” In Ancient Greece: From the Mycenaean Palaces to the Age of Homer, edited by Deger-Jalkotzy Sigrid and Lemos Irene S., 271-98. Edinburgh: Edinburgh University Press, 2006. Accessed April 21, 2020. www.jstor.org/stable/10.3366/j.ctt1g09xng.19. 287.
[17] Ibid 287.
[18] Mark Cartwright. “The Phoenicians – Master Mariners.” Ancient History Encyclopedia. Last modified April 28, 2016. https://www.ancient.eu/article/897/.
[19] Ezra Bowen. “Ships.” The Scientific Monthly 27, no. 1 (1928): 57-64. Accessed April 21, 2020. www.jstor.org/stable/7965.
[20] Mark Cartwright. “Trade in the Phoenician World.” Ancient History Encyclopedia. Last modified April 01, 2016. https://www.ancient.eu/article/881/.
[21] Ezra Bowen. “Ships.” The Scientific Monthly 27, no. 1 (1928): 57-64. Accessed April 20, 2020. www.jstor.org/stable/7965. 58.
[22] Mark Cartwright. “Trade in the Phoenician World.” Ancient History Encyclopedia. Last modified April 01, 2016. https://www.ancient.eu/article/881/.
[23] Ibid 1.
[24] Ibid 1.
[25] Ibid 1.
[26] Robert D. Ballard, Lawrence E. Stager, Daniel Master, Dana Yoerger, David Mindell, Louis L. Whitcomb, Hanumant Singh, and Dennis Piechota. “Iron Age Shipwrecks in Deep Water off Ashkelon, Israel.” American Journal of Archaeology 106, no. 2 (2002): 151-68. Accessed February 4, 2020. doi:10.2307/4126241. 166.
[27] Mark Cartwright. “Trade in the Phoenician World.” Ancient History Encyclopedia. Last modified April 01, 2016. https://www.ancient.eu/article/881/.
[28] Seán MacGrail, Early Ships and Seafaring: Water Transport Beyond Europe (Barnsley: Pen and Sword, 2015). 23.
[29] Mark Cartwright. “The Phoenicians – Master Mariners.” Ancient History Encyclopedia. Last modified April 28, 2016. https://www.ancient.eu/article/897/.
[30] Ibid 1.
[31] Robert D. Ballard, Lawrence E. Stager, Daniel Master, Dana Yoerger, David Mindell, Louis L. Whitcomb, Hanumant Singh, and Dennis Piechota. “Iron Age Shipwrecks in Deep Water off Ashkelon, Israel.” American Journal of Archaeology 106, no. 2 (2002): 151-68. Accessed February 4, 2020. doi:10.2307/4126241. 166.
[32] Ibid 161-162
[33] Ora Negbi. “Early Phoenician Presence in the Mediterranean Islands: A Reappraisal.” American Journal of Archaeology 96, no. 4 (1992): 599-615. Accessed May 16, 2020. doi:10.2307/505187. 606.
[34] Jan Paul Crielaard. “BASILEIS AT SEA: Elites and External Contacts in the Euboean Gulf Region From the End of the Bronze Age to the Beginning of the Iron Age.” In Ancient Greece: From the Mycenaean Palaces to the Age of Homer, edited by Deger-Jalkotzy Sigrid and Lemos Irene S., 271-98. Edinburgh: Edinburgh University Press, 2006. Accessed April 21, 2020. www.jstor.org/stable/10.3366/j.ctt1g09xng.19. 286.
[35] Ibid 278.
[36] Ibid 280.
[37] Ezra Bowen. “Ships.” The Scientific Monthly 27, no. 1 (1928): 57-64. Accessed April 20, 2020. www.jstor.org/stable/7965. 58.
[38] Jan Paul Crielaard. “BASILEIS AT SEA: Elites and External Contacts in the Euboean Gulf Region From the End of the Bronze Age to the Beginning of the Iron Age.” In Ancient Greece: From the Mycenaean Palaces to the Age of Homer, edited by Deger-Jalkotzy Sigrid and Lemos Irene S., 271-98. Edinburgh: Edinburgh University Press, 2006. Accessed April 21, 2020. www.jstor.org/stable/10.3366/j.ctt1g09xng.19. 287.
[39] Ibid 288.
[40] Jari Pakkanen and Petra Pakkanen. “The Toumba Building at Lefkandi: Some Methodological Reflections on Its Plan and Function.” The Annual of the British School at Athens 95 (2000): 239-52. Accessed May 16, 2020. www.jstor.org/stable/30103434. 241.
[41] J.A.K.E. De Waele. “The Layout of the Lefkandi ‘Heroon’.” The Annual of the British School at Athens 93 (1998): 379-84. Accessed April 20, 2020. www.jstor.org/stable/30103795. 384.

